Description
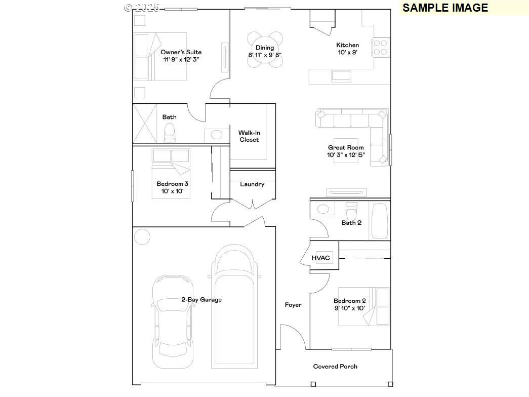
This new construction home is located in Meadowview, a serene community surrounded by protected wetlands and within close proximity to local parks & trails, with easy access to Fern Ridge Lake, grocery stores, schools, & restaurants. The Alderwood is a brand-new single-family home that has everything needed for modern living on a single level. A bedroom can be found off the entry, perfect as a guest suite or home office space, leading to an open floorplan consisting of the kitchen, dining area and great room. Two additional bedrooms are tucked to the side of the home, including the luxe owner’s suite, featuring a walk-in closet and en-suite bathroom. A two-bay garage completes the home. Interior highlights include quartz countertops, shaker-style cabinets, LVP flooring in the kitchen and bathrooms. This home also includes central air conditioning, a refrigerator, washer and dryer, and blinds—all at no extra cost! Located on homesite 78, this home is expected to be complete in February, 2026. Rendering is artist conception only. Photos are of a similar home, features and finishes will vary.
-
3BEDS
-
N/AACRES
-
2BATHS
-
01/2 BATHS
-
1,219SQFT
-
$342$/SQFT
School Information
Description
This new construction home is located in Meadowview, a serene community surrounded by protected wetlands and within close proximity to local parks & trails, with easy access to Fern Ridge Lake, grocery stores, schools, & restaurants. The Alderwood is a brand-new single-family home that has everything needed for modern living on a single level. A bedroom can be found off the entry, perfect as a guest suite or home office space, leading to an open floorplan consisting of the kitchen, dining area and great room. Two additional bedrooms are tucked to the side of the home, including the luxe owner’s suite, featuring a walk-in closet and en-suite bathroom. A two-bay garage completes the home. Interior highlights include quartz countertops, shaker-style cabinets, LVP flooring in the kitchen and bathrooms. This home also includes central air conditioning, a refrigerator, washer and dryer, and blinds—all at no extra cost! Located on homesite 78, this home is expected to be complete in February, 2026. Rendering is artist conception only. Photos are of a similar home, features and finishes will vary.
Listing content is copyright © 2026 RMLS™, Portland, Oregon. The content relating to real estate for sale on this web site comes in part from the IDX program of the RMLS™ of Portland, Oregon. Real estate listings held by brokerage firms other than Coho Realty are marked with the RMLS™ logo, and detailed information about these properties includes the names of the listing brokers. Data last updated 2026-01-18T16:47:41.087.Data deemed reliable but not guaranteed. Some properties which appear for sale on this web site may subsequently have sold or may no longer be available. IDX information is provided exclusively for consumers’ personal, non-commercial use, and may not be used for any purpose other than to identify prospective properties consumers may be interested in purchasing. All information provided is deemed reliable but is not guaranteed accurate by RMLS™ or Coho Realty and should be independently verified.

Listing provided courtesy of Lennar Sales Corp: .