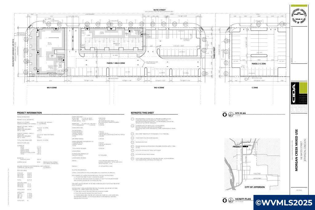
Description
Mixed Use Zoning allows for many uses from Single Family home to Multifamily. Owner has street engineering plans and preliminary architect renderings. Previously received land use Approval for 56 unit apartment complex with retail/commercial space in bottom and/or studio apartments. Conditional use may allow for removal of retail/commercial space, allowing for more units. Owner will carry with down. Listing agent is owner.
-
0BEDS
-
1.82ACRES
-
0BATHS
-
01/2 BATHS
School Information
Description
Mixed Use Zoning allows for many uses from Single Family home to Multifamily. Owner has street engineering plans and preliminary architect renderings. Previously received land use Approval for 56 unit apartment complex with retail/commercial space in bottom and/or studio apartments. Conditional use may allow for removal of retail/commercial space, allowing for more units. Owner will carry with down. Listing agent is owner.
© 2025 Based on information from Willamette Valley Multiple Listing Service, which neither guarantees nor is in any way responsible for its accuracy. All data is provided AS IS and with all faults. Data maintained by Willamette Valley Multiple Listing Service may not reflect all real estate activity in the market. Data last updated: 2025-11-17T21:08:42.347.