Description
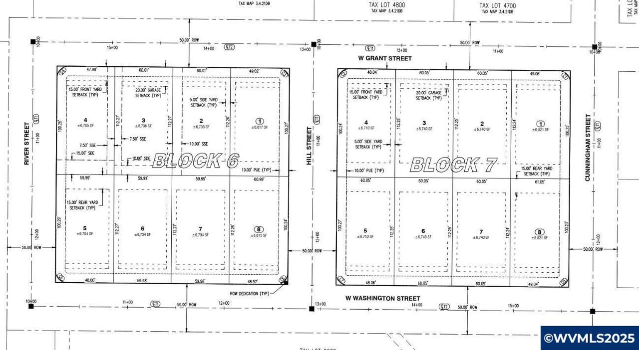
Welcome to Carlton's newest development! Located directly across from Wennerberg Park & next to farm ground, they make for a truly peaceful setting. All lots over 6700 square feet & all at 60' wide to easily fit a 3 car garage plan or allow for extra RV/Trailer parking. Construction complete & lots are all ready for foundations, bring your own plans! Each lot comes with approx $4,300 in SDC credits, this is discounted off the price of your building permits! Entity member is a licensed broker in State of OR.
-
0BEDS
-
0.15ACRES
-
0BATHS
-
01/2 BATHS
School Ratings & Info
Description
Welcome to Carlton's newest development! Located directly across from Wennerberg Park & next to farm ground, they make for a truly peaceful setting. All lots over 6700 square feet & all at 60' wide to easily fit a 3 car garage plan or allow for extra RV/Trailer parking. Construction complete & lots are all ready for foundations, bring your own plans! Each lot comes with approx $4,300 in SDC credits, this is discounted off the price of your building permits! Entity member is a licensed broker in State of OR.
Related Properties
© 2025 Based on information from Willamette Valley Multiple Listing Service, which neither guarantees nor is in any way responsible for its accuracy. All data is provided AS IS and with all faults. Data maintained by Willamette Valley Multiple Listing Service may not reflect all real estate activity in the market. Data last updated: 2025-11-18T00:08:40.757.