Description
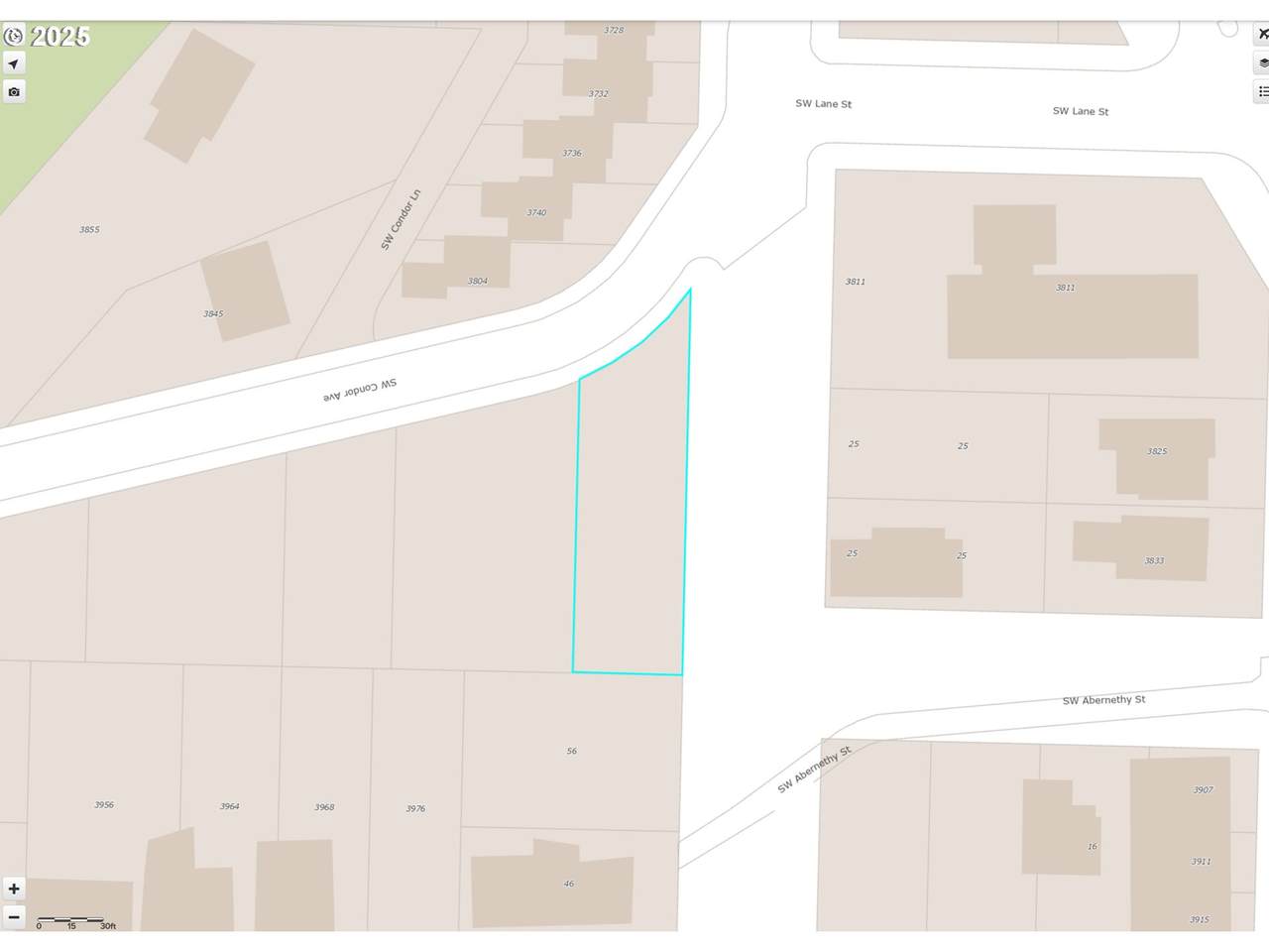
Unique Multi-Lot Development Opportunity Near Downtown Portland R5 Zoning with Environmental Overlay Just one mile southwest of downtown Portland, this exceptional offering includes three separate tax lots, presenting a rare opportunity for a custom home build or boutique-scale development in one of the city's most desirable close-in neighborhoods. Set within a peaceful, wooded environment, these sloped parcels provide a quiet natural setting with easy access to the city core. This lot is nestled into mature trees, offering privacy and a tranquil backdrop for a thoughtfully designed home. An adjacent lot and a third lot located just across the currently undeveloped street are also available, opening the door for expanded developmentwhether as a cohesive multi-home project, investment opportunity, or a private compound. All parcels are zoned R5 and carry a Cz (Constrained Site/Environmental Overlay), which supports single-family development with an emphasis on environmental sensitivity. The sloped topography lends itself to creative architectural solutions such as daylight basements, terraced construction, or homes that integrate seamlessly into the natural landscape. Utilities are nearby (buyer to verify), and public transit is within walking distancemaking access to downtown Portland, OHSU, PSU, and the South Waterfront fast and convenient. The Cz overlay will require careful planning and coordination with the City of Portland for permitting and development, but the potential here is significant for those with vision and a desire to build within nature, just minutes from the urban center. Whether you're a developer, architect, or homeowner seeking a rare urban infill opportunity, this multi-lot offering represents one of the last great chances to build in a close-in west side location where nature, flexibility, and proximity converge.
-
0BEDS
-
0.17ACRES
-
0BATHS
-
01/2 BATHS
School Information
Description
Unique Multi-Lot Development Opportunity Near Downtown Portland R5 Zoning with Environmental Overlay Just one mile southwest of downtown Portland, this exceptional offering includes three separate tax lots, presenting a rare opportunity for a custom home build or boutique-scale development in one of the city's most desirable close-in neighborhoods. Set within a peaceful, wooded environment, these sloped parcels provide a quiet natural setting with easy access to the city core. This lot is nestled into mature trees, offering privacy and a tranquil backdrop for a thoughtfully designed home. An adjacent lot and a third lot located just across the currently undeveloped street are also available, opening the door for expanded developmentwhether as a cohesive multi-home project, investment opportunity, or a private compound. All parcels are zoned R5 and carry a Cz (Constrained Site/Environmental Overlay), which supports single-family development with an emphasis on environmental sensitivity. The sloped topography lends itself to creative architectural solutions such as daylight basements, terraced construction, or homes that integrate seamlessly into the natural landscape. Utilities are nearby (buyer to verify), and public transit is within walking distancemaking access to downtown Portland, OHSU, PSU, and the South Waterfront fast and convenient. The Cz overlay will require careful planning and coordination with the City of Portland for permitting and development, but the potential here is significant for those with vision and a desire to build within nature, just minutes from the urban center. Whether you're a developer, architect, or homeowner seeking a rare urban infill opportunity, this multi-lot offering represents one of the last great chances to build in a close-in west side location where nature, flexibility, and proximity converge.
Listing content is copyright © 2025 RMLS™, Portland, Oregon. The content relating to real estate for sale on this web site comes in part from the IDX program of the RMLS™ of Portland, Oregon. Real estate listings held by brokerage firms other than Coho Realty are marked with the RMLS™ logo, and detailed information about these properties includes the names of the listing brokers. Data last updated 2025-11-14T09:50:12.637.Data deemed reliable but not guaranteed. Some properties which appear for sale on this web site may subsequently have sold or may no longer be available. IDX information is provided exclusively for consumers’ personal, non-commercial use, and may not be used for any purpose other than to identify prospective properties consumers may be interested in purchasing. All information provided is deemed reliable but is not guaranteed accurate by RMLS™ or Coho Realty and should be independently verified.

Listing provided courtesy of Keller Williams Realty Portland Premiere: 503-314-3404.